Mặt bằng Vinhomes Phú Quý có gì khác biệt so với dự án cùng phân khúc?
Vinhomes Phú Quý Nha Trang được phát triển theo định hướng “đô thị nghỉ dưỡng ven biển hiện đại”. Ngay từ khâu quy hoạch, mặt bằng Vinhomes Phú Quý được chăm chút kỹ lưỡng nhằm đạt sự cân bằng hoàn hảo giữa không gian sống – tiện ích – cảnh quan – thương mại. Vậy mặt bằng Vinpearl Phú Quý có gì đặc biệt, xem ngay bài viết dưới đây nhé!
Giới thiệu tổng quan dự án Vinhomes Phú Quý
Dự án Vinhomes Phú Quý tọa lạc tại vị trí chiến lược của thành phố biển Nha Trang, liền kề trung tâm và dễ dàng kết nối sân bay quốc tế Cam Ranh. Với quy mô quy hoạch bài bản, Vinpearl Phú Quý không chỉ là nơi nghỉ dưỡng lý tưởng mà còn là khu đô thị phức hợp kiểu mẫu với tầm nhìn phát triển bền vững.

Phối cảnh dự án Vinpearl Phú Quý
Thông tin cơ bản về dự án:
- Dự án Vinpearl Phú Quý có diện tích quy hoạch khoảng 33,8 ha, với tổng vốn đầu tư khoảng 7.453 tỷ đồng.
- Dự án được phát triển theo mô hình khu phức hợp Nhà ở – nghỉ dưỡng – thương mại – dịch vụ.
- Pháp lý hoàn thiện, sở hữu lâu dài cho các loại hình sản phẩm.
- Về tiến độ, chủ đầu tư dự kiến mở bán từ năm 2025 và bàn giao toàn bộ dự án vào năm 2026.
Điểm nhấn nổi bật từ mặt bằng Vinhomes Phú Quý
Mặt bằng thiết kế là một trong những yếu tố khiến Vinpearl Phú Quý thu hút giới đầu tư. Dự án được quy hoạch với mật độ xây dựng hợp lý, đảm bảo không gian xanh - mặt nước - công trình hài hòa. Cụ thể:
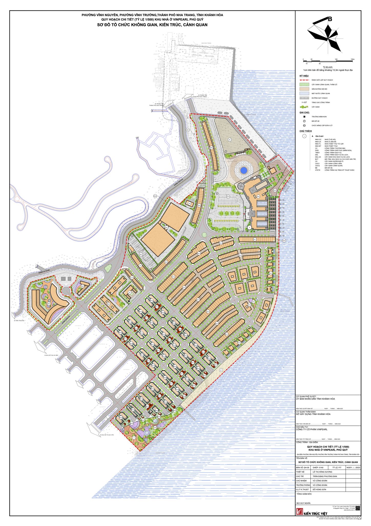
Quy hoạch đồng bộ, phân khu rõ ràng, thuận tiện di chuyển
Mặt bằng Vinhomes Phú Quý được quy hoạch, phân tách rõ ràng từng khu chức năng giúp cư dân và du khách di chuyển thuận lợi, đồng thời đảm bảo tính riêng tư cho từng phân khu:
- Phân khu biệt thự biển: Bố trí sát đường bờ biển, mỗi căn đều có tầm nhìn hướng biển hoặc hồ cảnh quan.
- Phân khu nhà phố thương mại (Shophouse): Nằm dọc trục đường chính, liên kết trực tiếp với khu dịch vụ và trung tâm thương mại.
- Khu khách sạn - dịch vụ: Nằm gần quảng trường biển, thuận tiện tiếp cận các tiện ích giải trí, mua sắm và bãi tắm riêng.

Phối cảnh dự án Vinhomes Phú Quý

Mặt bằng tổng thể dự án Vinpearl Phú Quý
Hướng biển tối đa, tối ưu giá trị vị trí vàng
Hơn 80% sản phẩm trong mặt bằng Vinhomes Phú Quý được thiết kế để hưởng trọn tầm nhìn biển hoặc hồ cảnh quan, mang lại giá trị cao cả về nghỉ dưỡng lẫn đầu tư. Cụ thể:
- Các dãy biệt thự đơn lập và song lập được thiết kế mỗi căn đều đón được ánh sáng, gió tự nhiên và view biển.
- Khu nhà phố liên kế (diện tích từ 63 - 100 m²) được quy hoạch phía sau, vừa giữ tầm nhìn thoáng, vừa dễ dàng kết nối ra trục đường chính và trung tâm thương mại.
- Toàn bộ hạ tầng kỹ thuật như điện, nước, viễn thông được thiết kế âm dưới lòng đất, giữ cho không gian nhìn từ trên cao luôn gọn gàng, tinh tế và thoáng đãng

Thiết kế ôm trọn view biển
Mật độ xây dựng thấp, không gian xanh bao phủ toàn khu
Vinpearl Phú Quý được định hướng là khu đô thị nghỉ dưỡng xanh, nên mật độ xây dựng được giữ ở mức thấp chỉ khoảng 35 - 40% diện tích, phần còn lại dành cho cây xanh, cảnh quan và mặt nước.
- Mặt bằng dự án bố trí nhiều công viên nội khu, hồ cảnh quan và tuyến đường cây xanh xen kẽ giữa các khối nhà.
- Trục cảnh quan chính chạy từ quảng trường biển – hồ trung tâm – khu biệt thự, tạo thành chuỗi liên kết thiên nhiên xuyên suốt.
- Ngoài ra, khu vực vui chơi trẻ em, sân thể thao, đường dạo bộ ven hồ được tích hợp trong từng phân khu, mang lại không gian sống cân bằng và thư giãn cho cư dân.

Mảng xanh ôm trọn dự án Vinpearl Phú Quý
Liên kết chặt chẽ với hệ sinh thái tiện ích Vinpearl
Mặt bằng Vinpearl Phú Quý được thiết kế “mở”, tạo trải nghiệm sống và nghỉ dưỡng trọn vẹn. Các tuyến đường nội khu dẫn thẳng đến chuỗi tiện ích như:
- Trung tâm thương mại Vincom, khu phố ẩm thực và shophouse kinh doanh.
- Khu spa, gym, bể bơi vô cực, khu vui chơi trẻ em, nằm xen kẽ giữa khu ở và khu nghỉ dưỡng.
- Bệnh viện Vinmec mini và trường học Vinschool tương lai, định hướng xây dựng đồng bộ trong cùng hệ sinh thái.

Thiết kế giúp cư dân tận hưởng trọn vẹn tiện ích đô thị hiện đại
Đa dạng loại hình, phù hợp nhiều nhu cầu sở hữu và đầu tư
Vinhomes Phú Quý đáp ứng linh hoạt nhiều tệp khách từ nhà đầu tư cá nhân, gia đình định cư, đến các đơn vị kinh doanh dịch vụ.
Bao gồm:
- Biệt thự đơn lập, song lập (240 - 600m2): Dành cho khách hàng cần không gian riêng tư, sang trọng.
- Nhà phố thương mại (63 - 100m2): Linh hoạt vừa ở vừa kinh doanh, phù hợp khai thác dịch vụ lưu trú, ẩm thực hoặc bán lẻ.
- Khách sạn mini: Được bố trí ở các vị trí trung tâm, thuận tiện khai thác du lịch ngắn ngày.

Vinpearl Phú Quý đa dạng sản phẩm, đáp ứng đủ nhu cầu khách hàng
Mặt bằng Vinpearl Phú Quý - Tầm nhìn quy hoạch khác biệt
So với các dự án cùng phân khúc, mặt bằng Vinpearl Phú Quý Nha Trang thể hiện sự khác biệt ở bốn yếu tố: Quy hoạch chuẩn quốc tế, tỷ lệ hướng biển cao, không gian xanh rộng lớn và kết nối hệ sinh thái Vinpearl.
Chính sự đồng bộ và tầm nhìn dài hạn trong bố trí mặt bằng giúp dự án này trở thành hình mẫu cho xu hướng “Nghỉ dưỡng kết hợp đô thị hiện đại” tại Nha Trang giai đoạn mới.
Mặt bằng Vinhomes Phú Quý Nha Trang được quy hoạch khoa học, tối ưu công năng và cảnh quan, tạo nên không gian nghỉ dưỡng đẳng cấp vượt trội so với các dự án cùng phân khúc. Điểm khác biệt nằm ở vị trí trung tâm, thiết kế tinh tế chuẩn quốc tế và hệ sinh thái tiện ích hoàn chỉnh, mang đến giá trị bền vững cho cả an cư và đầu tư. Đây là biểu tượng mới của bất động sản nghỉ dưỡng cao cấp, nơi hội tụ đẳng cấp sống và cơ hội sinh lời lâu dài.
-
Vị trí The Magnolia - Lợi thế khác biệt đón đầu hạ tầng khu Đông
Vị trí The Magnolia nằng trong khu đô thị Khai Sơn, quận Long Biên, Hà Nội. Nổi bật với ưu thế không gian thoáng đãng, nhiều tuyến giao thông quan trọng bao quanh. -
Giá bán Monrei Saigon 2026: Cập nhật mới nhất từ chủ đầu tư
Giá bán Monrei Saigon chưa được chủ đầu tư công bố chính thức, tuy vậy mức giá rumor các căn hộ ở đây sẽ dao động trong khoảng 80 - 120 triệu/m2. -
Tìm hiểu về Phát Đạt - Chủ đầu tư Lusso Saigon uy tín
Chủ đầu tư Lusso Saigon là tập đoàn Phát Đạt đã có hơn 20 năm kinh nghiệm phát triển bất động sản, các sản phẩm tập trung chủ yếu tại khu vực Nam và Trung Bộ. -
Lý do nên đầu tư La Pura Gloria ngay lúc này
Tìm hiểu những lý do nên đầu tư La Pura Gloria để vừa có nơi an cư chất lượng, vừa có tài sản tích luỹ, lại dễ khai thác cho thuê hoặc kinh doanh. -
Vinhomes Pearl Bay không gian sống gắn với thiên nhiên
Vinhomes Pearl Bay không gian sống trong lành, xen kẽ giữa kiến trúc và thiên nhiên để tạo dựng nơi an cư yên tĩnh và chất lượng cho mọi gia đình.